Lincoln | Live Windler download our brochure
Back to All Inventory

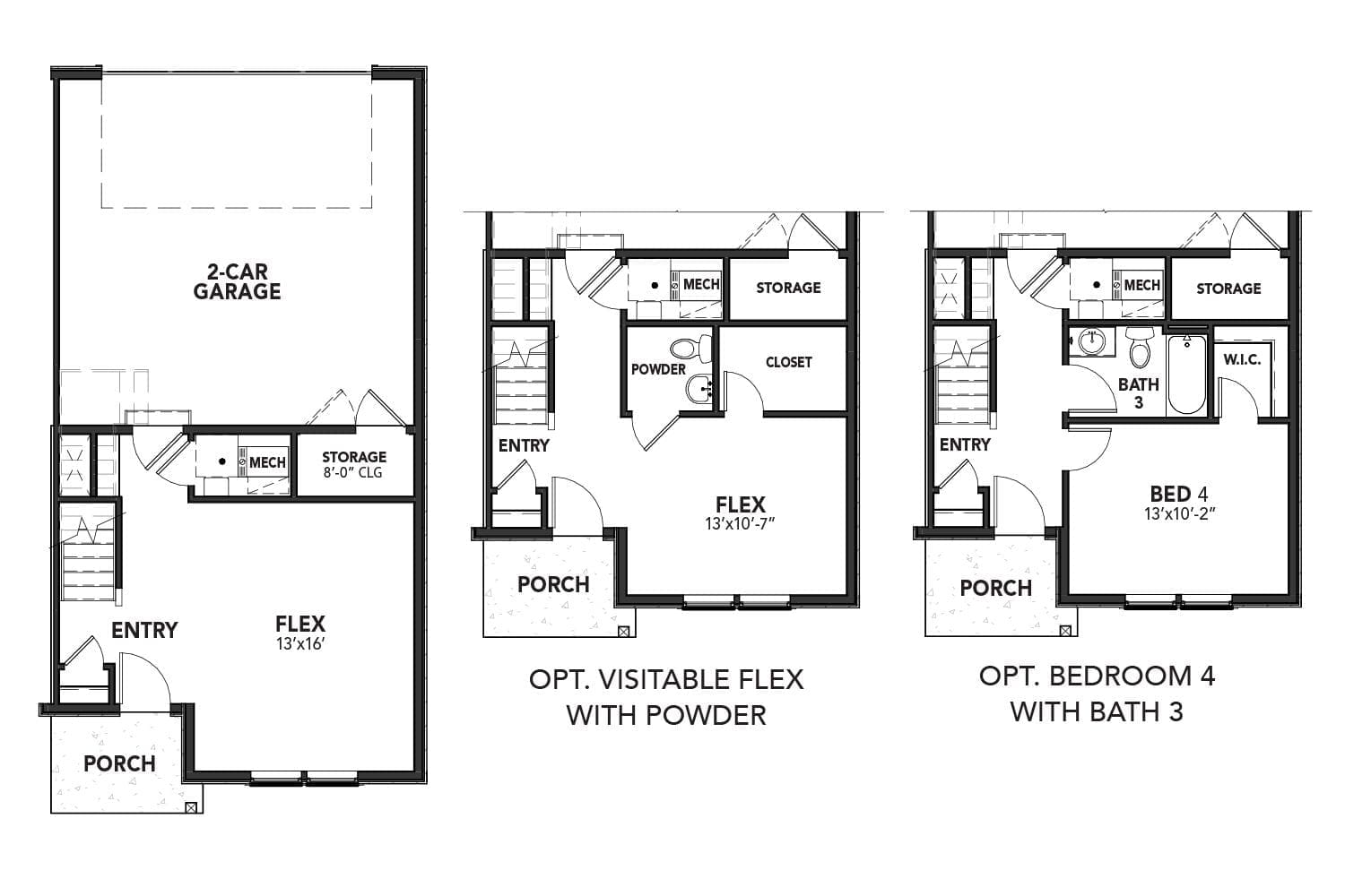
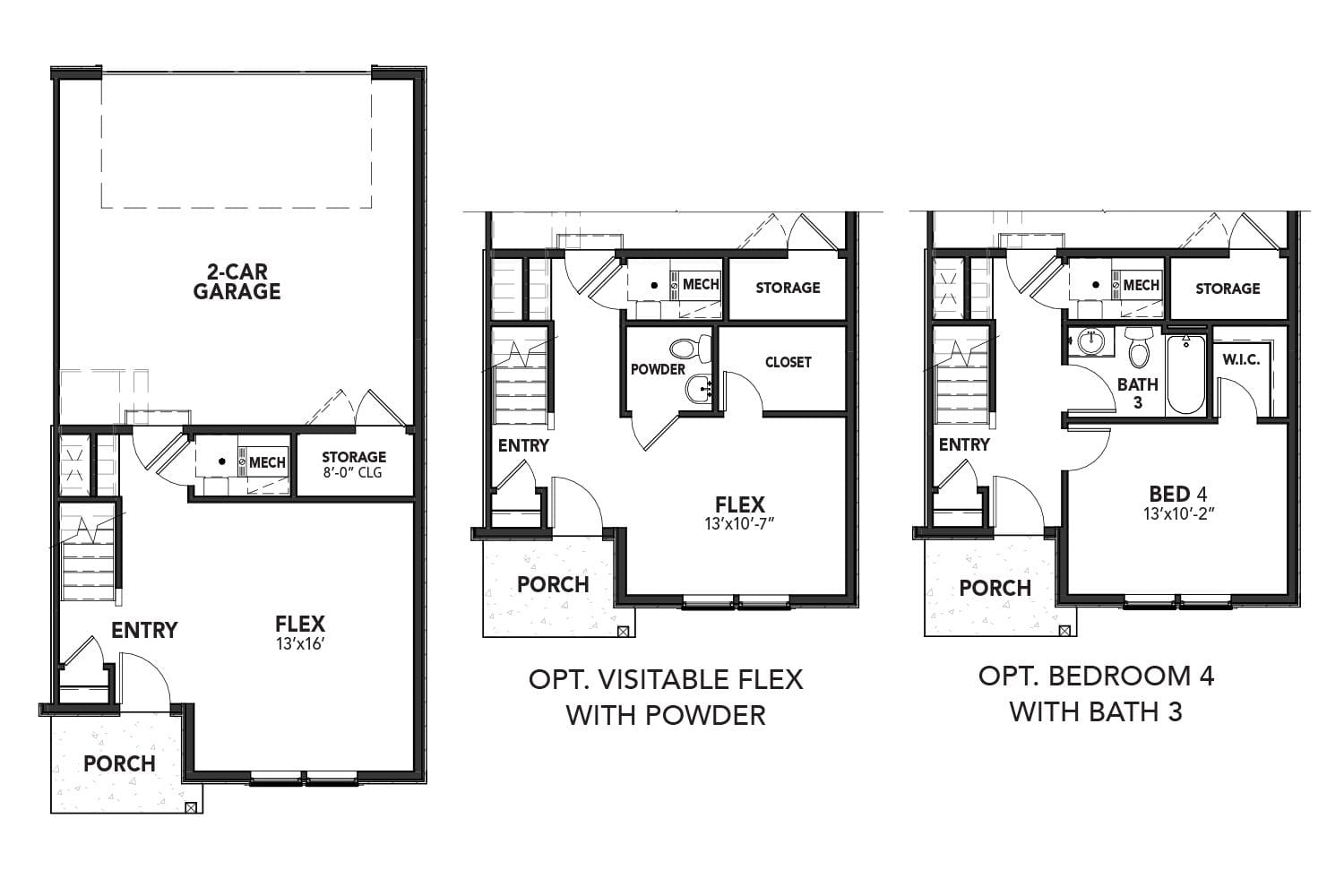
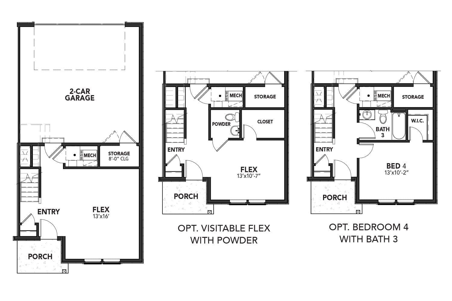
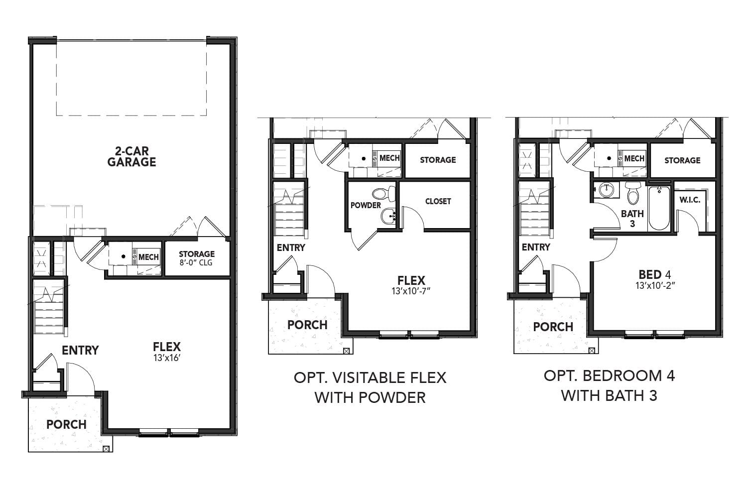
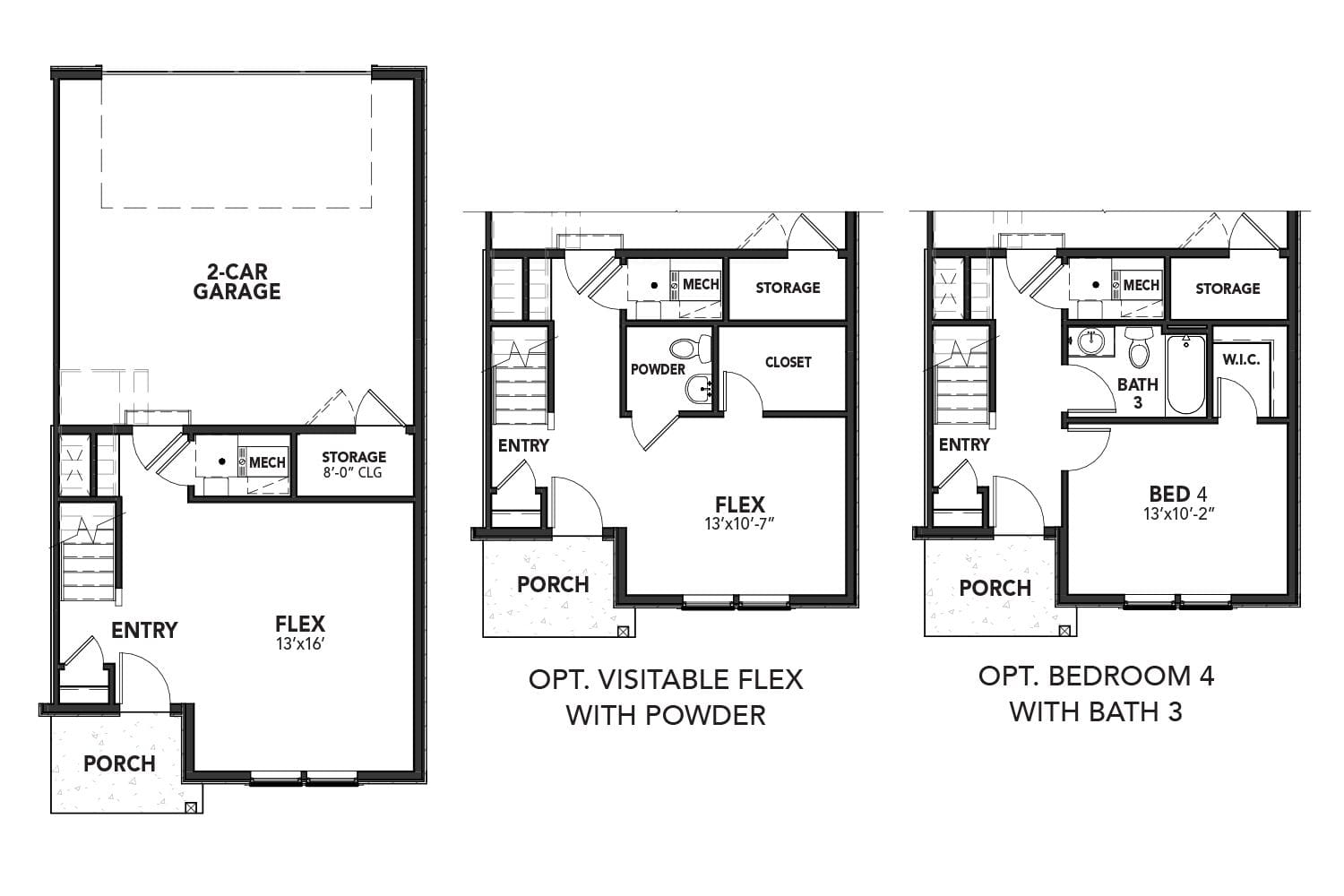
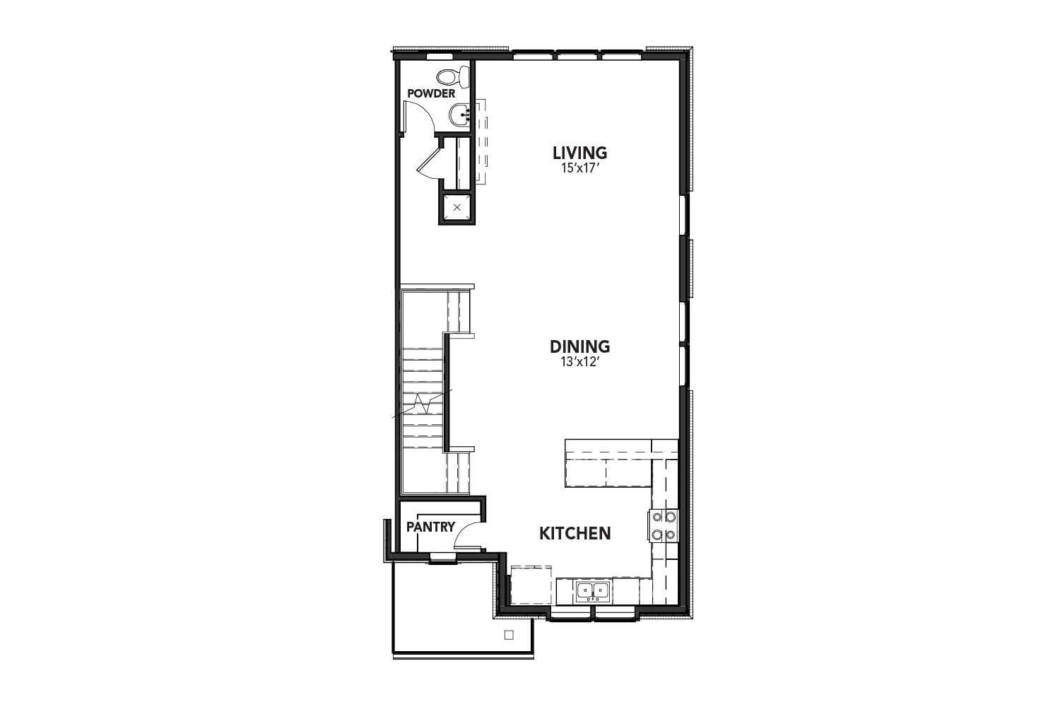
Lincoln

  • 2159 sq ft
  • 3 bd
  • 2 ba
  • 2 gr

By DRB Homes

About Lincoln

  • Single Family
  • 3 Stories
  • 2,159 Sq Ft
  • 3 Beds
  • 2.5 Baths
  • 2 Car Garage

DRB Homes has thoughtfully crafted 3 story townhomes offering versatile designs with options for a dual primary suites or bedrooms on separate levels, making them ideal for a range of lifestyles.